- KiTa Curiestrasse, Leipzig
- Schülermensa, Leipzig
- KiTa „Versöhnungskirchgemeinde“, Leipzig
- Ausstellungspavillon „Urelefant“, Geiseltalsee
- KiTa „Hofkinder“, Leipzig
- Brüderhalle, Leipzig
- Pflegeheim Eulenhof, Krostitz
- Pflege- und Wohnheim, Leipzig
- KiTa „Das Nest“ Nebelschütz
- KiTa „Zwergenhaus am Kiessee“
- Pflegeheim Lützner Straße, Leipzig
- Planetenspielplatz, Klein-Welka
- Hochschule für Musik, Dresden
- Kletterturm Mockau, Leipzig
- Internationales Zentrum, Stuttgart
- Ortsmitte Winselner









Wettbewerb Neubau KiTa „Das Nest“, Gartenstraße Nebelschütz
| PROJEKTINFOS: | |
| PROJEKTART | Realisierungswettbewerb 1. Preis |
| ADRESSE | Gartenstraße, Nebelschütz |
| BAUHERR | Gemeinde Nebelschütz |
| NUTZER | CSB Miltitz e.V. |
| KOSTEN | KG 300/300/700 € 1,2 Mio |
| REALISIERUNG | 2013/2014 |
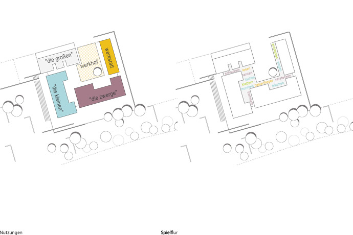
In unmittelbarer Nähe des historisch gewachsenen Ortskernes interpretiert der Kindergartenneubau das Thema der Drei- und Vierseithöfe und ergänzt die Ortsstruktur an der Hacênka mit einem weiteren, autarken Gebäudeensemble in Anlehnung an die traditionelle Bauform der sorbischen Hofanlagen. Der Gebäudekomplex mit dem Erschließungshof präsentiert sich zur Straße hin als öffentlich und einladend und behütend zugleich. Das Gebäudekonzept ist geprägt von dem Anliegen, die verschiedenen Nutzungsbereiche und die zugehörigen Außenräume miteinander in enge Wechselwirkung zu bringen. Das Gebäudeensemble gliedert sich entsprechend der Nutzungen in eingeschossige, ablesbare Baukörper mit geneigten Dächern, die verbunden über das Foyer und die Spielflure den unmittelbaren Kontakt zu dem geschützten Hof erhalten.