- KiTa Curiestrasse, Leipzig
- Schülermensa, Leipzig
- KiTa „Versöhnungskirchgemeinde“, Leipzig
- Ausstellungspavillon „Urelefant“, Geiseltalsee
- KiTa „Hofkinder“, Leipzig
- Brüderhalle, Leipzig
- Pflegeheim Eulenhof, Krostitz
- Pflege- und Wohnheim, Leipzig
- KiTa „Das Nest“ Nebelschütz
- KiTa „Zwergenhaus am Kiessee“
- Pflegeheim Lützner Straße, Leipzig
- Planetenspielplatz, Klein-Welka
- Hochschule für Musik, Dresden
- Kletterturm Mockau, Leipzig
- Internationales Zentrum, Stuttgart
- Ortsmitte Winselner






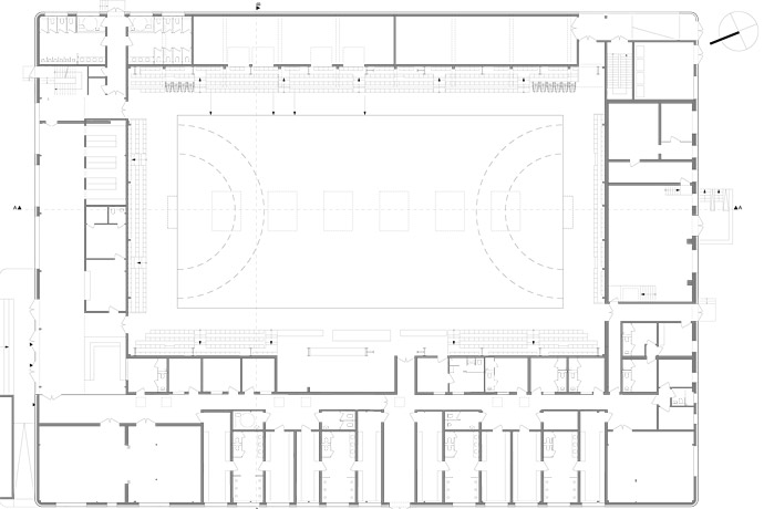
Umbau und Sanierung Brüderhalle, Leipzig
| PROJEKTINFOS: | |
| PROJEKTART | Erweiterung und Sanierung |
| ADRESSE | Brüderstraße 5 , Leipzig |
| BAUHERR | Hochbauamt Stadt Leipzig |
| NUTZUNG | Sporthalle Ballsport |
| KOSTEN | Budget 4,86 Mio € |
| ENTWURF | mit Kilpper-Architekten 2012 |
Das Entwurfskonzept ist geprägt von dem Anliegen, die bestehenden Trag- und Raumstrukturen der Halle und der Funktionsbereiche zu erhalten, keine zusätzlichen Lasten zu erzeugen oder gravierende Eingriffe in die Gründung der bestehenden, raumbildenden Wände zu verursachen. Durch das Entfernen der Akustikdecke und die Anordnung der Oberlichtbänder und Dachkuppeln soll das filigrane Raumtragwerk der Dachkonstruktion sichtbar und die damit verbundene Ingenieurskunst erlebbar gemacht werden. Die notwendigen räumlichen Ergänzungen aus den Anforderungen an die erhöhte Zuschauerzahl und des anzupassenden Raumprogramms erfolgt über die Ergänzung eines statisch unabhängigen, zweigeschossigen Anbaus an der Ostseite der Halle. Der Kubus der Halle wird durch die verschiedenen Funktionsbereiche mit einheitlicher Fassadengestaltung vollständig umrahmt.