- KiTa Curiestrasse, Leipzig
- Schülermensa, Leipzig
- KiTa „Versöhnungskirchgemeinde“, Leipzig
- Ausstellungspavillon „Urelefant“, Geiseltalsee
- KiTa „Hofkinder“, Leipzig
- Brüderhalle, Leipzig
- Pflegeheim Eulenhof, Krostitz
- Pflege- und Wohnheim, Leipzig
- KiTa „Das Nest“ Nebelschütz
- KiTa „Zwergenhaus am Kiessee“
- Pflegeheim Lützner Straße, Leipzig
- Planetenspielplatz, Klein-Welka
- Hochschule für Musik, Dresden
- Kletterturm Mockau, Leipzig
- Internationales Zentrum, Stuttgart
- Ortsmitte Winselner








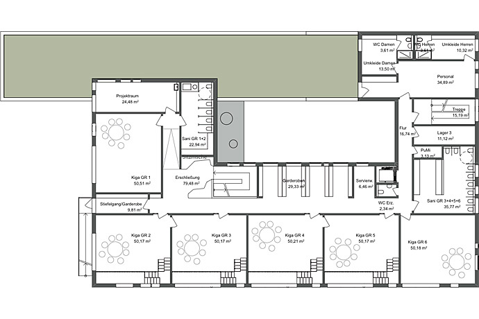
Gutachterverfahren Neubau KiTa „An der Alten Messe“, Leipzig
| PROJEKTINFOS: | |
| PROJEKTART | Realisierungswettbewerb 2. Rang |
| ADRESSE | Curiestraße, Leipzig |
| AUSLOBER | Stadt Leipzig, LESG |
| NUTZUNG | Kindertagesstätte 165 Kinder |
| KOSTEN | KG 200-700 / 2,5 Mio. € |
| AUSLOBUNG | 2014 |
Das monolithische, spiralförmig um einen Innenhof entwickelte Gebäude steht als Symbol für eine schützende Behausung, die den unwirtlichen Rahmenbedingungen des näheren Umfeldes und Immissionen des nahen Verkehrs trotzt, aber einladend und behütend zugleich wirkt. Das plastische Gebäudevolumen stiftet Identität und Orientierung für die Kindertagesstätte an einem städtebaulich undefinierten und unscheinbaren Ort. Geprägt ist der Entwurf von dem Anliegen, einen kompakten Baukörper mit möglichst geringer Geschoßfläche zu modellieren, bei dem die Gruppen- und Schlafräume der Kinder verkehrslärmgeschützt angeordnet sind, aber trotzdem in enger Wechselwirkung zum Außenraum stehen können. Der geplante Baukörper und dessen Anordnung auf dem Grundstück ermöglichen die konsequente Orientierung der Aufenthaltsbereiche der Kinder in die zwei unterschiedlichen Außenräume im südlichen und westlichen Teil des Grundstücks.