- KiTa Curiestrasse, Leipzig
- Schülermensa, Leipzig
- KiTa „Versöhnungskirchgemeinde“, Leipzig
- Ausstellungspavillon „Urelefant“, Geiseltalsee
- KiTa „Hofkinder“, Leipzig
- Brüderhalle, Leipzig
- Pflegeheim Eulenhof, Krostitz
- Pflege- und Wohnheim, Leipzig
- KiTa „Das Nest“ Nebelschütz
- KiTa „Zwergenhaus am Kiessee“
- Pflegeheim Lützner Straße, Leipzig
- Planetenspielplatz, Klein-Welka
- Hochschule für Musik, Dresden
- Kletterturm Mockau, Leipzig
- Internationales Zentrum, Stuttgart
- Ortsmitte Winselner



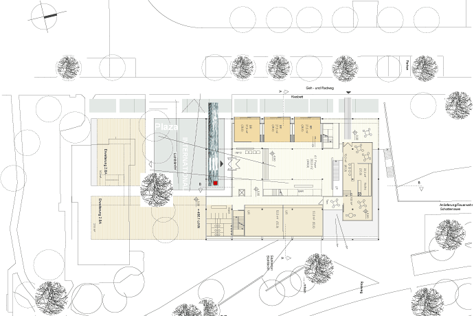
Wettbewerb Neubau Internationales Zentrum, Stuttgart
| PROJEKTINFOS: | |
| PROJEKTART | Realisierungswettbewerb Ankauf |
| ADRESSE | Campus Universität Stuttgart |
| AUSLOBER | Universität Stuttgart |
| ENTWURF | Thorsten Luka für KLN-Architekten |
| AUSLOBUNG | 2000 |
Der Entwurf ist das Resultat aus der Auseinandersetzung mit dem vorhandenen Campus und seinen zahlreichen Architekturen. Es wird ein klar konzipierter Baukörper vorgeschlagen, der seine Prägnanz durch die klare formale Sprache gewinnt. Ein gefülltes Raumgerüst aus tragenden Bauteilen symbolisiert die Offenheit und Transparenz der Universitätseinrichtung. In seiner komplexen Differenziertheit, in seiner prägnanten Fassadengestaltung und in der plastischen Ausformung der Sonderbaukörper gibt das Gebäude dem Ort eine eindeutige Signifikanz, die durch die Gestaltung der Außenräume und den geplanten Erweiterungsbau sinnvoll ergänzt wird.