




Bebauungskonzept Wohnhausgruppe, Russenstraße, Leipzig
| PROJEKTINFOS: | |
| PROJEKTART | Wohnbebauung |
| ADRESSE | Russenstraße, Leipzig |
| BAUHERR | privat |
| ENTWURF/STUDIE | 2005 |
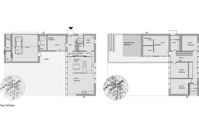
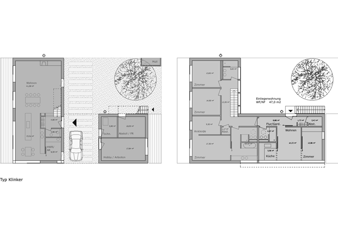
Auf einem parkähnlichen Privatgrundstück für vier Einfamilienhäuser wurden zwei Haustypen zur Bebauung vorgeschlagen. Die Baukörpervolumen mit L-förmigem Grundriss erzeugen Außenräume, die je nach Haustyp als geschützte Freibereiche oder befestigte Höfe definiert sind. Die 2-geschossigen Baukörper in Massiv- und Holzbauweise mit begrüntem Flachdach integrieren sich als reduzierte und differenzierte Bauvolumen in der parkähnlichen Gesamtanlage. Die KfZ-Stellplätze im und unter dem Gebäude verhindern die „Verblechung“ des Gartengrundstückes. Die Orientierung aller Aufenthaltsräume nach Süden oder Westen unterstützen die energetische Bilanz der Haustypen. Beide Haustypen ermöglichen die Integration einer Einliegerwohnung, die separat erschlossen wird und oberhalb der Garage bzw. Nebenräume angeordnet ist.