









Denkmalgerechte Sanierung Villa Lausicker Str. 26, Leipzig-Stötteritz
Hieronymus-Lotter-Preis für Denkmalpflege 2014
| PROJEKTINFOS: | |
| PROJEKTART | Umbau und Sanierung Wohnhaus |
| ADRESSE | Lausicker Straße 26, Leipzig-Stötteritz |
| BAUHERR | privat |
| LEISTUNGEN | Lph LPH 2-8 |
| FERTIGSTELLUNG | November 2013 |
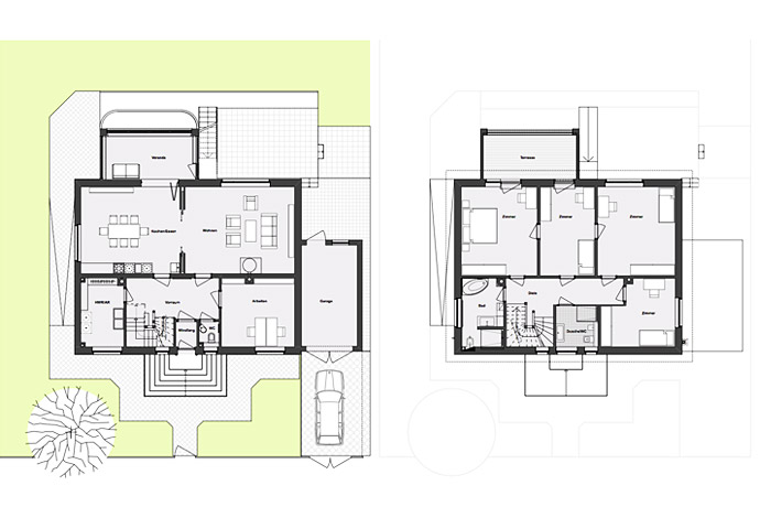
Die Art-deco-Villa Lausicker Str. 26 wurde 1934 nach Plänen aus dem Jahr 1932 errichtet.
Die weitestgehend im Originalzustand erhaltene, durch Wasserschäden beschädigte Gebäudesubstanz konnte denkmalgerecht saniert werden, das Dachgeschoß zur Wohnraumnutzung gedämmt und ausgebaut.
Vorhandene Kastenfenster sind aufgearbeitet, beschädigte Scheiben mit Ziehglas neu verglast und die Rahmenprofile mit Standölfarbe gestrichen. Sämtliche Innentüren und die historischen Beschläge wurden gereinigt, aufgearbeitet und wieder eingesetzt. Das Parkett im Erdgeschoß wurde vollständigt ausgebaut, getrocknet, gereinigt und im historischen Fischgrätmuster wiederverlegt. Neu zu verputzende Innenwände erhielten einen mehrlagigen Innenputz aus Luftkalk und wurden anschliessend mit Kalkkasein-Farben gestrichen. Der stark beschädigte Aussenputz musste komplett entfernt und anhand alter Putzmuster nachgestellt und neu aufgebracht werden.
Die denkmalgerechte Sanierung wurde mit dem Hieronymus Lotterpreis 2014 durch die Kulturstiftung Leipzig ausgezeichnet.