








Um- und Ausbau Bauernhofscheune, München Trudering
| PROJEKTINFOS: | |
| PROJEKTART | Umbau Bauernscheune |
| ADRESSE | München-Trudering |
| BAUHERR | privat |
| PLANUNG | Lph 1-8 mit hans wittig, architekt |
| FERTIGSTELLUNG | 2004 |
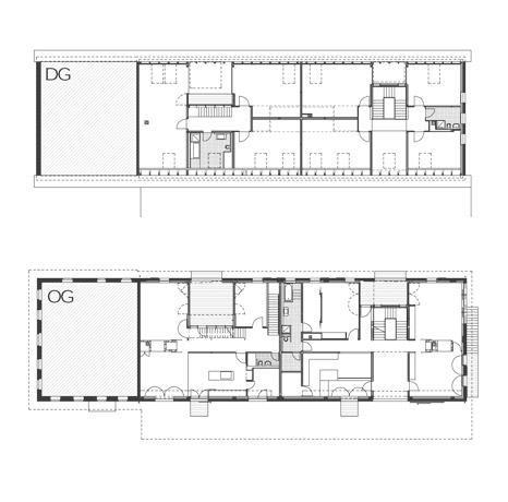
Die Scheune eines Bauernhauses wurde für Wohnzwecke der Eigentümergemeinschaft um- und ausgebaut. Ziel der Planung war der schonende Umgang mit der intakten Bausubstanz unter Wahrung der Authentizität des Gebäudes und des Standortes. Gesonderten Wert wurde darauf gelegt, die typische Erscheinung des Bauernhauses und seine gestaltprägenden Elemente in die Umbaukonzeption einzubeziehen. Im Rahmen der Umnutzung wurde die Scheune in zwei Wohneinheiten gegliedert. Geschossübergreifende Lufträume und Galerien bewahren den großzügigen Raumeindruck der ehemaligen Scheune. Die Eingriffe in die Fassade sind auf ein notwendiges und sinnvolles Maß begrenzt. Vorhandene, gebäudetypische Elemente des Gebäudes wurden ergänzt oder neu interpretiert.