


Bebauungskonzept Neubau Mehrfamilienwohnhäuser Poetenweg, Leipzig
| PROJEKTINFOS: | |
| PROJEKTART | Mehrfamilienhaus/Eigentumswohnungen |
| ADRESSE | Poetenweg, Leipzig |
| BAUHERR | Harkai & Zech Development GmbH |
| PLANUNG | Entwurf 2010 |
| KOSTEN | KG 300/400 circa € 2,2 Mio |
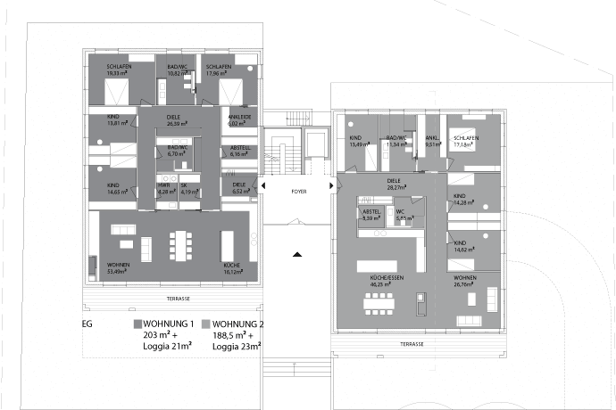
In der heterogenen Bebauungsstruktur aus repräsentativen Villen, umgenutzten Industriegebäuden und gründerzeitlichen Wohnbauten soll im Blockinnenbereich ein Gebäudekomplex mit acht hochwertigen Eigentumswohnungen entstehen. Das Wohngebäude setzt sich aus zwei Stadtvillen und einer gemeinsamem Tiefgarage zusammen, verbunden über die gemeinsame Erschliessungszone und den transluzent verglasten Vorräumen, die wahlweise als Wintergarten oder Abstellbereich genutzt werden können. Die Anordnung der Wohnräume um einen zentralen, lastabtragenden Versorgungs- und Nebenraumkern ermöglicht eine individuelle Aufteilung der Wohnungsgrundrisse. Die rauhe, dunkel eingefärbte Putzoberfläche der hoch gedämmten Aussenwände wird kombiniert mit edelholzfurnierten Fassadentafeln und grossflächig verglasten Fensterelementen.