





Neubau Mehrfamilienwohnhaus als Passivhaus, Gletschersteinstraße 43, Leipzig
| PROJEKTINFOS: | |
| PROJEKTART | Neubau Mehrfamilienhaus |
| ADRESSE | Gletscherstreinstraße 43, Leipzig |
| BAUHERR | Bauherrengemeinschaft Passivhaus GLS 43 |
| KOSTEN | KG 300-500, € 1,63 Mio |
| FERTIGSTELLUNG | 05/2012 |
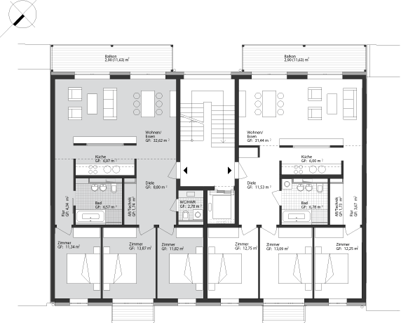
Im Kontext der gründerzeitlichen Blockrandbebauung wird die Baulücke mit einem Wohnungsneubau wieder geschlossen. Inspiriert von der Authentizität der historischen Nachbarbebauung wurden Gebäudevolumen, Fassadenbauteile und Materialbezüge unter Berücksichtigung der Anforderungen an einen zeitgemäßen Wohnungsneubau entwickelt. Der hoch gedämmte, kompakte Neubau erfüllt die bauphysikalischen Bedingungen für ein Wohnhaus in Passivhausbauweise. Zwei Maisonettewohnungen und acht Geschosswohnungen mit individuell gestaltbaren Grundrissen ermöglichen Wohnraum, der den Anforderungen der Eigennutzer an Barrierefreiheit und Altersgerechtigkeit entspricht. Mit dem Bauvorhaben wird erstmals der Neubau eines Mehrfamilienwohnhauses in Passivhausbauweise mit einer dezentralen Lüftungsanlage und Wärmerückgewinnung in Leipzig gefördert und realisiert.